





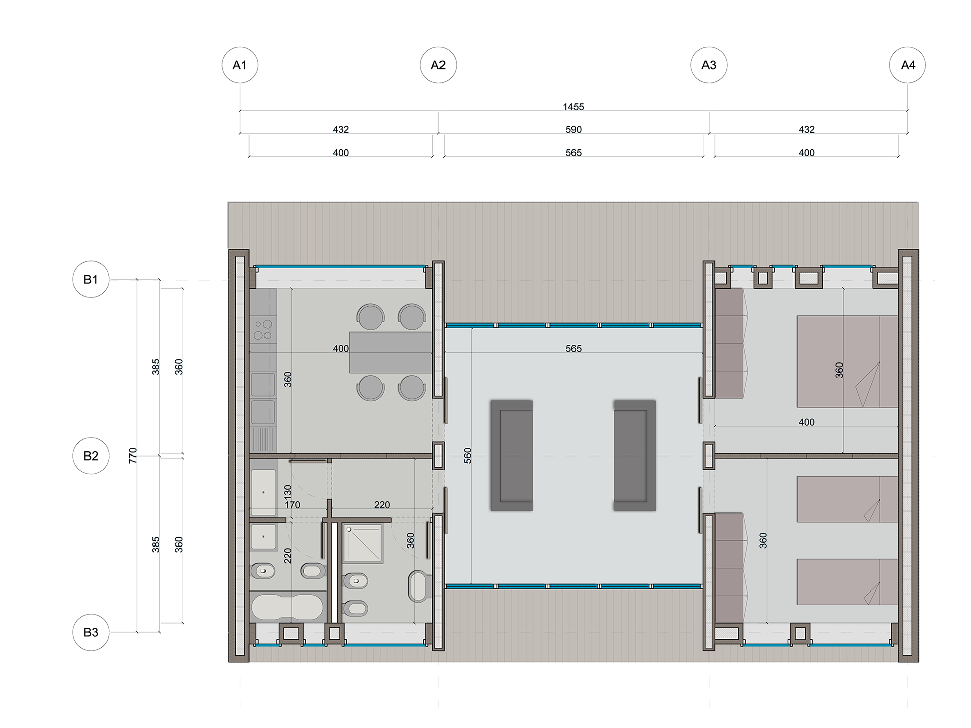
EasyBox è una cellula abitativa modulare nata dall’osservazione della crescita naturale dei rami di un albero: una regola semplice capace di generare un disegno sempre nuovo e sorprendente. L’elemento base diventa parte di un sistema più ampio, adattabile e mai banale. La costruzione utilizza esclusivamente il sistema POLIESPANSO, con setti portanti e solai Plastbau Metal, garantendo solidità, isolamento termoacustico e semplicità costruttiva senza ricorso a pilastri. L’involucro esterno raggiunge spessori elevati, assicurando prestazioni energetiche e comfort abitativo. La distribuzione interna è chiara: una zona notte e una zona servizi collocate ai lati, collegate da un grande soggiorno centrale passante, flessibile e privo di corridoi, con doppi affacci vetrati che rendono la cellula indifferente all’orientamento. I bagni ricevono sempre luce e ventilazione naturale, mentre la camera principale è orientata a nord per maggiore comfort. Il rapporto tra dentro e fuori si concentra nel cannocchiale centrale che mette in continuità il soggiorno con la loggia e l’eventuale giardino. La loggia stessa diventa accesso esclusivo e spazio di espansione, conferendo ulteriore variabilità al modulo. Il soggiorno funge da polmone abitativo capace di espandersi o contrarsi verso l’esterno semplicemente spostando le vetrate. Questo meccanismo permette di differenziare ogni cellula e di creare configurazioni sempre nuove. EasyBox può esistere come unità isolata o aggregarsi in sistemi più complessi, anche multipiano, grazie a corpi scala prefabbricati che consentono aggregazioni lineari o ramificate. In questo modo l’insieme costruito acquista varietà, qualità spaziale e capacità di adattamento a contesti diversi. Le finiture esterne, in intonaco, pietra o legno, rafforzano l’integrazione con l’ambiente naturale.
È l’essenza del lavoro dell’architetto: trasformare un’idea in forma costruita, valorizzando il contesto e rispettando le risorse disponibili. Ogni nuovo progetto è un’occasione straordinaria per unire competenza tecnica e visione personale dell’architettura. La ricerca si sviluppa nel dialogo tra forma e funzione, materiali e sintassi compositiva, sostenibilità e flessibilità d’uso. Progettare un edificio significa interrogarsi sul suo rapporto con lo spazio pubblico, sulle performance energetiche, sulla capacità di adattarsi nel tempo. È un processo complesso e condiviso, che coinvolge diverse discipline e competenze, ma che proprio per questo restituisce la parte più gratificante della professione: dare vita a ciò che ancora non esiste.